Home >> Products >> Industrial Specialized Testing >> Civil Engineering >> Adhesive Pull-Off Strength Tester
Adhesive Pull-Off Strength Tester

Adhesive Pull-Off Strength Tester

Model: UT2046BA-10, ISO 4587, ISO 13007,

Adhesive pull-off tester is a testing device used to test the pull-off strength of adhesives. It works by applying adhesive to the surfaces of two different materials and then applying a vertical pulling force to test the bonding strength. This test can determine the adhesive's sticking ability and durability, which is very important for evaluating its applications in industrial and everyday life. The adhesive pull-off tester can be used on various materials such as metal, plastic, and wood, and it features simplicity, ease of use, accuracy, and reliability. It is an essential testing device for both adhesive manufacturers and users.


Standard: 

ISO 4587: Adhesives — Determination of tensile lap-shear strength of rigid-to-rigid bonded assemblies

ISO 13007-1:2014 Ceramic tiles — Grouts and adhesives Part 1: Terms, definitions and specifications for adhesives

EN 1384: Adhesives for tiles. Determination of tensile adhesion strength for cementitious adhesives


General Introduction

Adhesive pull-off tester is a testing device used to test the pull-off strength of adhesives. It works by applying adhesive to the surfaces of two different materials and then applying a vertical pulling force to test the bonding strength. This test can determine the adhesive's sticking ability and durability, which is very important for evaluating its applications in industrial and everyday life. The adhesive pull-off tester can be used on various materials such as metal, plastic, and wood, and it features simplicity, ease of use, accuracy, and reliability. It is an essential testing device for both adhesive manufacturers and users.


Building materials Adhesives Bond Strength Tensile Testing Machine is mainly used for tensile and bonding strength testing of dry-mix mortar, insulation materials, ceramic wall and floor tile adhesives, multi-layer architectural coatings, and exterior wall putty. The testing machine has an elegant appearance and fine workmanship. It uses a servo control system, enabling uniform loading with high efficiency and good stability. It features touchscreen control and a user-friendly interface. The instrument is equipped with travel limit and overload protection for both positive and negative forces. It has adjustable testing speed, high load measurement accuracy, and convenient operation. It is applicable in factories, construction project quality inspection stations, construction companies, product quality inspection institutes, research universities, and on-site road and bridge projects, for production testing, quality inspection, and research and development purposes.

Adhesive Pull-Off Strength TesterAdhesive Pull-Off Strength Tester
Pull off test fixture of Building materials Adhesives Bond Strength Tensile Test


Instructions for Use:

Using the adhesive pull-off tester requires the following steps:

1. Confirm that the dimensions and shape of the test sample are correct and secure it in the test fixture of the testing machine.

2. Adjust the parameters of the testing machine to match the characteristics of the test sample, such as tensile speed, test parameters, and sample size.

3. Start the test and monitor the tensile force and displacement data.

4. When the test sample reaches its limit, the tester will automatically stop and record the maximum tensile force value.

5. Additionally, for shear strength testing, place the sample in the shear fixture and follow the same steps for testing.

Main features

  • Features
  • Trouble shooting
  • Reference Standard
  • Precautions

1. Touchscreen control with a user-friendly human-machine interface.

2. Servo-driven for continuous uniform displacement loading and uniform force loading.

3. Equipped with dual sensor capability, standard configuration includes one sensor.

4. Fast lifting and one-key automatic return when no load is applied.

5. Stroke limit and overload protection for both positive and negative forces.

6. Quick positioning in the X-Y directions, especially suitable for testing multiple samples on a single test board.

7. Equipped with single-point fixtures for convenient single-sample testing.

8. Articulated T-shaped head for easy positioning and handling of test specimens.

9. Movable platen to prevent bending and deformation of test materials. (Non-standard configuration)


ProblemsReason and treatment
There is no display after powering onController power cord, insurance, switch, etc
Start without actionHost power supply, insurance, switch, control cable
After loading, the test force is not displayedWhether the sensor is well connected
The force value is stableCheck the system ground wire
Long alarmSensor over-range loading or sensor wire breaking


ISO 4587: Adhesives — Determination of tensile lap-shear strength of rigid-to-rigid bonded assemblies

ISO 13007-1:2014 Ceramic tiles — Grouts and adhesives Part 1: Terms, definitions and specifications for adhesives

EN 1384: Adhesives for tiles. Determination of tensile adhesion strength for cementitious adhesives

When using the adhesive pull-off tester, the following points should be observed:


1. Ensure that the laboratory environment has a stable temperature, and the testing machine is not affected by other vibrations.

2. The size and shape of the test sample must comply with the standard specifications, and the test fixture and sample should fit tightly together.

3. Clean the fixtures and test samples before and after testing to ensure accurate results, and pay attention to safety during the operation.

4. Before use, the instrument must be calibrated to ensure testing accuracy.

Main Technical Specification

Maximum test force10KN
Load resolution0.1N
Effective measuring range1%~100%F·S
Load measurement accuracywithin ±0.5% of the   indicated value
Pulling methodvarious control modes   available, including force control and displacement control
Pulling speed range0.1 mm - 300 mm/min
Specimen width range70 - 500 mm
Maximum specimen thickness50 mm
Maximum travel of the test   head100 mm
Dimension1400X 600X 1570mm
Weight120Kg
Standard Power220, 50HZ, 1 phase


Test sample details

The specimen is a standard "single lap tensile shear" specimen, and all parameters are critical to the repeatability and comparability of the test results.

Specimen structure (single lap)

One end of the two adhesive objects (specimens) is overlapped together at a certain overlapping length to form a joint.

On the testing machine, tensile loads are applied to the unbonded ends to subjected the lap area to shear stress.

Adhesive Pull-Off Strength Tester
Adhesive Pull-Off Strength Tester

Building materials Adhesives Bond Strength Tensile Testing Machine Sample information: 

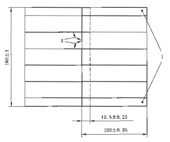
ParametersrequirementsToleranceDescription
Overlap Length12.5 mm±0.25 mmThe core stress area of the joint   directly affects the shear stress distribution
Adherend Thickness1.6 mm (Metal)±0.1 mmThe common value of rigid materials,   non-metals are not mandatory in the standard, but they need to be consistent
Adherend Width25 mm±0.2 mmStable shear area (25 mm×12.5 mm=312.5   mm²)
The total length of the object being   adhered to100 mm±0.5 mmAdapt to the fixture to avoid   interference during loading
Bond Line Thickness0.2 mm (typical)±0.05 mmControlled by calibrated steel wires /   glass beads, too thick is prone to cohesion failure
Alignment of the object being adhesiveNo offsetThe lap edge is misaligned≤ 0.1 mmPrevent stress concentration caused by   eccentric force


Materials and requirements for the adhesive (specimen).

Material: Must be a rigid material. The standard recommends and most commonly used metals, in particular:

 Ordinary carbon steel (such as Q235): most commonly used, low cost, easy surface treatment. 

 Aluminum alloy (e.g. LY12CZ): Used in aviation, lightweight fields. 

 Stainless steel, other alloys, or non-metallic rigid materials (e.g., specific plastics, composites) may also be used, but this must be clearly stated in the report.

o Surface Treatment (Crucial):

 The surface to be adhered to needs to be standardized to eliminate interference with the results of the surface condition.

 Specific steps are specified in the standard, which usually include: solvent degreasing (e.g., acetone, methyl ethyl ketone wiping), → mechanical sanding (e.g., sandpaper sanding), → secondary solvent cleaning→ drying. 

 After treatment, bonding should be carried out within the specified time (such as within 1 hour) to prevent re-contamination or oxidation of the surface.


Number of specimens

o Minimum number of samples: not less than 5. 

o Best Practice: Typically prepare and test 5-10 valid specimens to ensure the reliability of statistical results. 

o Invalid specimen: If the failure mode is abnormal (such as too thick adhesive layer, obvious lack of glue, obvious bending of the specimen, slippage of the clamping area, etc.), the data should be invalidated and a new specimen should be supplemented. 


Sample preparation process (requirements)

o Cleaning and handling: Strictly treat the adhesive surface according to the above methods. 

o Adhesive Coating:

 Mix well according to the specified ratio (two-component glue).

 Apply the adhesive evenly over the entire lap surface of a specimen.

 Controlling the thickness of the adhesive layer is both difficult and key. The standard method is usually through positioning devices (e.g., thickness gaskets, specialized fixtures) or applying slight pressure after lapping and using overflow to ensure uniform adhesive layers. The final adhesive layer thickness should be between 0.05-0.20mm and recorded. 

o Assembly and curing:

 Immediately stack another specimen to form the specified lap length.

 Use special specimen preparation fixtures to ensure accurate alignment and positioning.

 Cure according to the curing conditions (pressure, time, temperature) specified by the adhesive manufacturer. The curing pressure should ensure that the adhesive layer is uniform, but not too large will cause the adhesive to be completely extruded.

o Cleanup: After curing, carefully remove any spilled gliomas to avoid stress on the bonding area. 


Result calculation and reporting requirements: 

• Tensile Shear Strength Calculation:

Among them:

o τ= tensile shear strength in megapascals (MPa)

o F= Maximum load at specimen failure in Newtons (N)

o b= Specimen lap surface width in millimeters (mm)

o l= Specimen lap length in millimeters (mm)

• The report must include:

Tensile shear strength value, arithmetic mean, standard deviation of each specimen.

Require More Customized Solutions?

We offer customization to meet your specific needs. Our expert team will collaborate with you to develop the perfect product for you
Customize Now

Beijing United Test Co., Ltd.